


Phoebe had a very plain and dull bathroom which included a rather passé shower curtain, appeared very cluttered, and in short, needed a dramatic overhaul. She had come across Foam & Bubbles’ website and contacted us straight away.
Phoebe wanted a contemporary bathroom that would be easy to clean and maintain, that had both showering and bathing facilities, and also looked on-trend whilst including storage space and importantly, black fittings, which both she and her daughter had seen and fallen in love with!
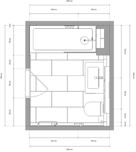
The bathroom measures a quite average 2.05m x 2.58m, which meant that we knew we would be able to address all Phoebe’s requests, without compromising on floor area or storage opportunities. The marble-look porcelain tiles met her brief perfectly, and we knew they would offer a striking contrast with the black fittings and black framed shower screen.
Our suggestion of black/dark grey grout and black tile edging trim pulled the colour concept together absolutely, and emphasised that striking, linear look. The false wall created for the WC and basin meant that the whole space became very simple and streamlined and also provided an alcove shelf and space for the large mirror cabinet. Plain white walls for the alcove and ceiling further emphasised the feeling of light and space, where design details such as the black fittings and basin cabinet stand out beautifully.


We do feel that in this design, the choice of black fittings and mustard finish for the cabinet, teamed with gold handles, make this a unique colour scheme. The generous size of the two-drawer cabinet, combined with the mirrored wall cabinet, means that both Phoebe and her daughter have lots of bathroom storage space. Practically speaking, the fact that everything is wall-mounted, including the WC brush holder, makes this bathroom a complete joy to clean and maintain!





Call us: 0333 011 1717